Addyson Gardner

Heritage-Sensitive Residential Interiors

Spaces that honor the character of what's already there — designed with technical precision from concept through construction documentation.

View My Work
Scroll
Addyson Gardner

About Me

Interior Design senior at the University of Alabama with production experience across 10+ residential projects. I work in AutoCAD, SketchUp, and Revit, and I'm trained in IBC, ADA, and NFPA codes. My experience spans design studios, furniture showrooms, and on-site construction — from concept renderings through installation.

"Every space has a story already. My job is to listen to it and build on what's there — not start over."

Education
B.S. Interior Design, University of Alabama
Graduation
May 2026, Cum Laude
Honors
3.51 GPA  |  Dean's List, 5 Semesters
Membership
ASID Student Member
10+
Residential Projects
3
Software Platforms
5
Dean's List Semesters
3.51
GPA — Cum Laude

Selected Work

From concept renderings through construction documentation — residential work that listens to a space before changing it.

Custom Residential Kitchen

3D Renderings

A family kitchen designed to feel collected, not catalog-perfect. Olive cabinetry, burl wood, and a full-height marble backsplash bring warmth and visual weight to an open volume, while the built-in banquette anchors the room as the center of the home.

SketchUp Residential Kitchen Design Custom Millwork
Kitchen rendering - view from south west corner
View from South West Corner
Kitchen rendering - view from banquette
View from Banquette

The Carrington Project

Greensboro, Alabama

A circa-1835 cottage in Greensboro, Alabama — expanded for a modern family without erasing what made it worth preserving. All new construction was confined to the rear to leave the street-facing elevation untouched, and interior finishes were layered to feel collected over time rather than renovated all at once.

Role: Lead student designer  |  Scope: Space planning, concept development, finish selection, custom millwork design, hand-rendered elevations, CAD documentation

Lead Designer Renovation Space Planning Custom Millwork Historic
Carrington Project - Living Room Rendering
Living Room Rendering
Carrington Project - Renderings grid
Room Renderings
Site design and constraints
Site Design & Constraints
Floor plan development
Floor Plan Development

Hand Renderings & CAD Elevations

Design Development

Each elevation starts as a scaled CAD drawing and is hand-rendered with color and material samples so clients can visualize finish relationships before anything is ordered. These drawings bridge the gap between technical documentation and client communication.

AutoCAD Hand Rendering Elevations Material Selection
Hand rendered street facing elevation
Hand-Rendered Street Facing Elevation
CAD bathroom elevation - hand rendered
Bathroom Elevation
CAD kitchen elevation
Kitchen Elevation
CAD fireplace elevation - hand rendered
Fireplace Elevation

Also In My Toolkit

Construction Documentation

AutoCAD & Revit

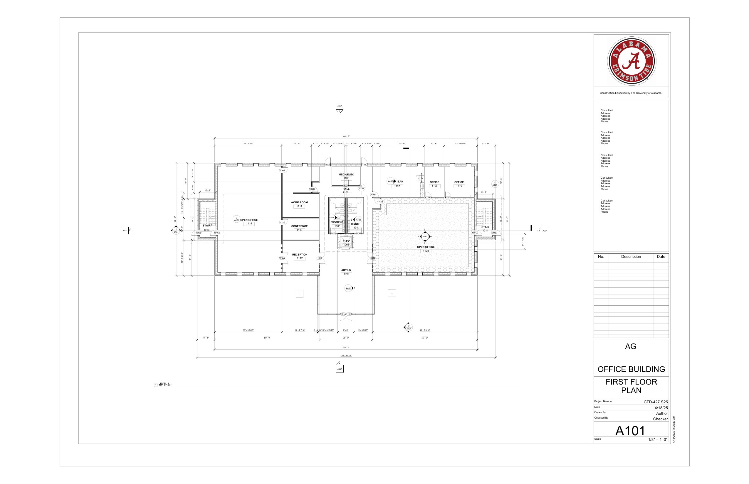
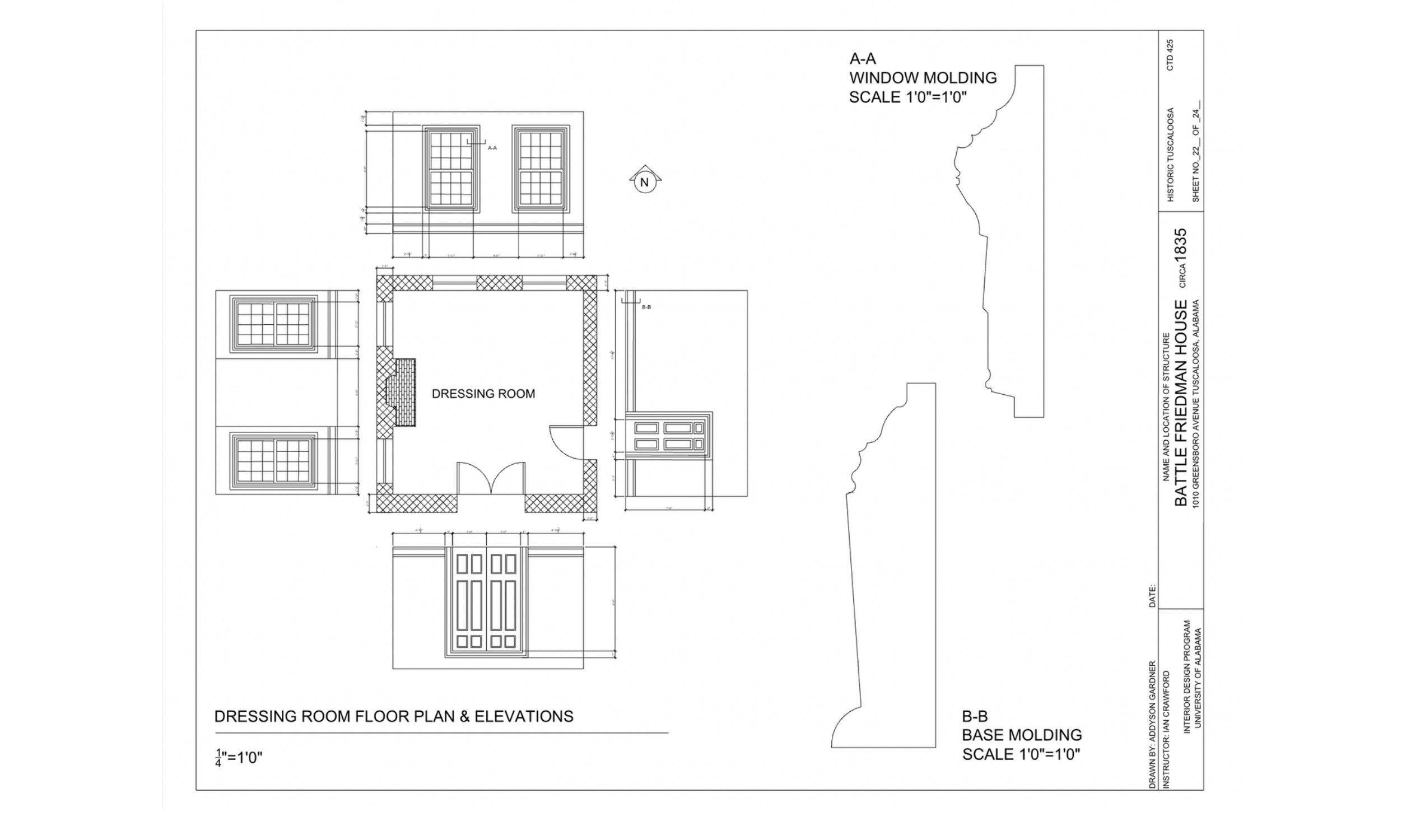
Production-level technical output: measured field drawings of the Battle Friedman House (circa 1835, Tuscaloosa) documenting existing conditions for restoration, and a complete Revit CD package with floor plans, reflected ceiling plan, and organized drawing sets.

Revit AutoCAD Construction Documents Historic Documentation
Historic structure documentation plate - Battle Friedman House
Battle Friedman House — Historic Structure Documentation
Office building cover page - Revit
Office Building — Cover Sheet
First floor plan
First Floor Plan
Reflected ceiling plan
Reflected Ceiling Plan

Skills & Software

Revit

  • Residential & commercial construction documents
  • Floor plans, elevations, and section cuts
  • Building coordination and clash review
  • Drawing set organization and sheet management
  • BIM workflows and family editing

AutoCAD

  • Floor plan development
  • Interior and exterior elevations
  • Custom furniture design
  • Custom millwork and built-ins
  • Construction-level details

SketchUp

  • Perspective views
  • Full room renderings
  • Full home renderings
  • Spatial massing and form studies

Design Methods

  • Hand-rendered elevations and details
  • Perspective sketching
  • Material and finish selection
  • Space planning for residential interiors

Professional Strengths

  • Historic and context-sensitive design
  • Custom cabinetry and millwork design
  • Furniture and lighting specification
  • Digital and physical presentation boards

Codes & Standards

  • IBC — International Building Code
  • ADA — Accessibility Standards
  • NFPA — Fire Protection Standards

Experience

Interior Design Assistant

August 2025 — Present
Lampadas Living — Tuscaloosa, AL

Producing AutoCAD and SketchUp drawings for 10+ residential projects, guiding clients through furniture and finish selections, and executing on-site installations from single rooms to full-home scopes.

Interior Design Intern

May 2024 — August 2024
Mintwood Home — Alexandria, VA

Worked one-on-one with the lead designer — drafting AutoCAD plans, managing finish selections and vendor communication, and contributing to all phases of residential design projects.

Design & Operations Assistant

May 2023 — Present
Universal Floors — Washington, DC

Hands-on hardwood flooring installations and restorations, gaining firsthand knowledge of field conditions, material behavior, and the full lifecycle of construction projects.

Let's Work Together

I'm looking for a studio where I can grow alongside experienced designers and contribute from day one. If your firm values technical skill, a strong eye, and someone who genuinely cares about the details — I'd love to talk.

Download Resume